INTERIOR DESIGN SERVICES

Build Services

PERMIT DRAWINGS 1

Interior Alterations Building Permit

Architectural drawings to include:

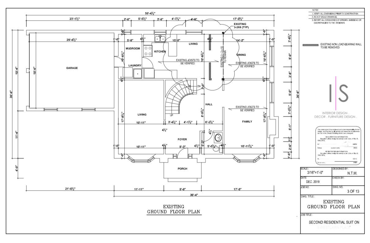
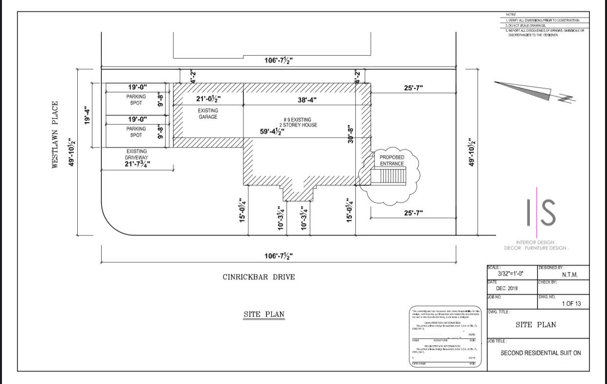
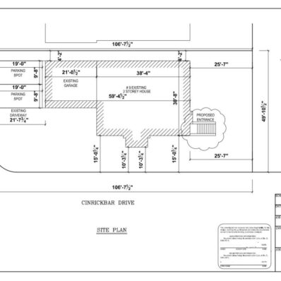
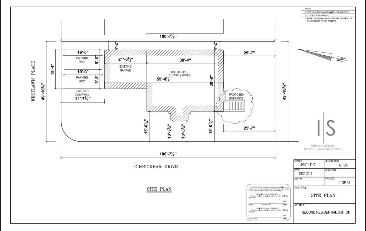
  • Site plan
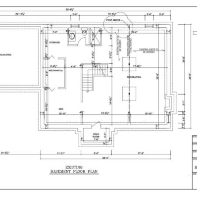
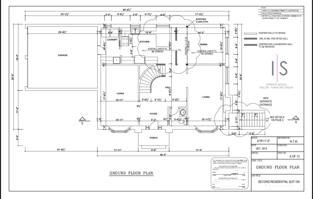
  • Existing 2D floor plans
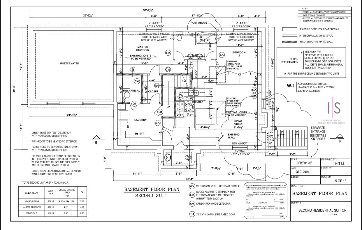
  • Proposed 2D floor plans
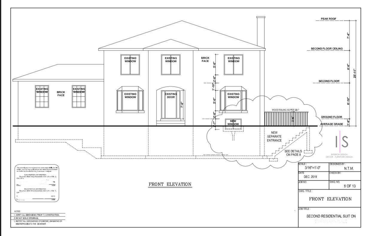
  • Exterior elevations
  • Section drawings
  • Drawings compliant with OBC and BCIN-stamped

Additional services:

  • Submission and management of building permits with the city/municipality
  • 3D design video showcasing materials, finishes, furniture, and accessories

PERMIT DRAWINGS 2

Secondary Suites and Additions

Architectural drawings to include:

  • Site plan
  • Existing 2D floor plans
  • Proposed 2D floor plans
  • Exterior elevations
  • Section drawings
  • Roof plan
  • Drawings compliant with OBC and BCIN-stamped

Additional services:

  • Submission and management of building permits with the city/municipality
  • 3D design video showcasing materials, finishes, furniture, and accessories

CUSTOM HOME

Building a Two-Storey Dwelling

Architectural drawings include:

  • Site plan
  • Existing 2D floor plans
  • Proposed 2D floor plans
  • Exterior elevations
  • Section drawings
  • Roof plan
  • Schedules
  • Drawings compliant with OBC and BCIN-stamped

Additional services:

  • Submission and management of building permits with the city/municipality
  • Coordination with structural and/or mechanical engineers (HVAC services separate)
  • 3D design video showcasing materials, finishes, furniture, and accessories

PROJECT MANAGEMENT 1

For Interior Alterations Building Permit & Secondary Suites

Services include:

  • Planning and scheduling of deliveries
  • Goal setting, problem-solving, and project control
  • Site visits for demolition, and installation of plumbing fixtures, electrical, and millwork

PROJECT MANAGEMENT 2

For Custom Home Building Permit

Services include:

  • Planning and scheduling of deliveries
  • Goal setting, problem-solving, and project control
  • Financial services: estimates and construction budgets
  • Site visits for demolition, and installation of plumbing fixtures, electrical, and millwork

CONSTRUCTION

Working with Our Contractors

  • We prefer to work with our trusted contractors at IS to ensure clear communication, trade competency, and a team-focused approach.
  • Our contractors are fully insured, TARION-registered, and employ licensed trades to successfully complete your project.

Iman Stewart | Interior Designer

There are no limits in creativity.
Only possibilities.

Email: info@imanstewart.com
Phone: (647) 495-0411
Hours: Monday – Friday, 10am – 6pm
(
By appointment only)

IS INTERIORS
5225 Orbitor Drive, Unit 19 Mississauga, Ontario L4W 4Y8

Follow Us
Copyright 2022 IS IMAN STEWART INTERIORS.